Liestal
Erweiterung und Umbau Kantonsgericht
Wettbewerb offen
2. Preis
Jahr
2020
Auftraggeber
Bau- und Umweltschultzdirektion Kanton Basel-Landschaft

Das kantonale Gerichtsgebäude besetzt eine bedeutsame Stelle im Stadtgrundriss von Liestal: Einerseits formt es zusammen mit dem Kulturhaus Palazzo den östlichen Bahnhofplatz, gleichzeitig steht es direkt an der nach Osten abfallenden Geländekante und thront so gewissermassen über der Altstadt.
Die vorgeschlagene Erweiterung auf der Nordseite des Altbaus bildet mit diesem zusammen ein kräftiges Volumen, welches diese gebaute Kante als Abschluss des Bahnhofsquartiers stärkt und gleichzeitig den Flussraum des Orisbachs zu dessen Fuss als Grünraum betont.
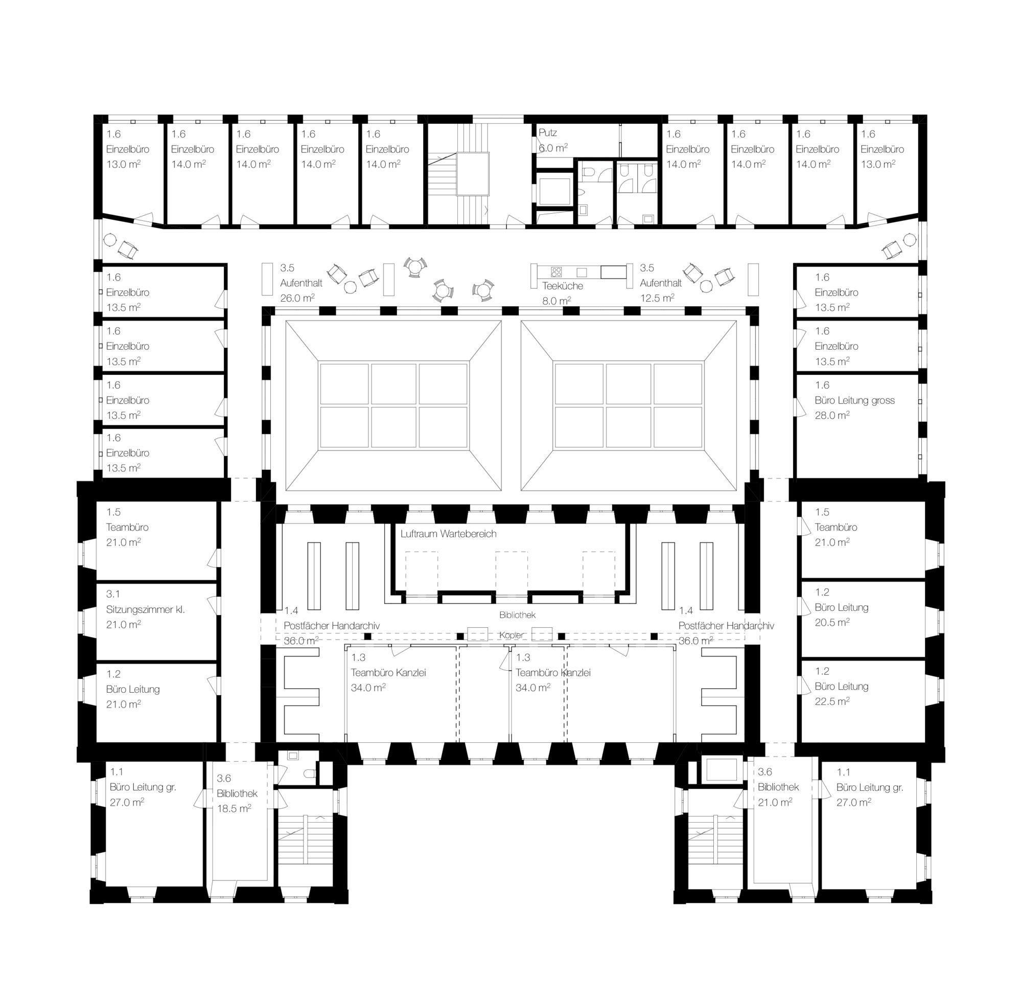
Prägendes architektonisches Thema des Erdgeschosses ist die Schnittfigur, welche vom Haupteingang zu den grossen Sälen hin eine räumliche Dramaturgie aufbaut.
Das in die Tiefe orientierte Eingangsfoyer führt in einen dem Mittelteil des Altbaus eingeschriebenen zweigeschossigen Wartebereich, welcher sich über dessen ganze Breite erstreckt. Er erhält über die Obergeschossfenster kühles Nordlicht und bereitet durch seine konzentrierte Atmosphäre die Besucher auf die Verhandlungen vor. Die beiden grossen Säle besetzen schliesslich den Hofraum und erhalten durch zentrale Oblichter gleichmässiges und blendfreies Licht. Die verhalten expressive Raumfigur zeichnet sie als wichtigste Räume des Hauses aus.

Dialog zwischen Alt und Neu
Ein dialogisches Verhältnis prägt das Nebeneinander von Alt- und Neubau: Das Thema der muralen Fassaden mit stehenden Fensterformaten wird weiterentwickelt, jedoch in eine zeitgenössische Sprache übersetzt.