hallo

Loogarten

Neubau Sozialbetriebe Christuszentrum


  • Auftragsart

    Studienauftrag selektiv

  • Bauherrschaft

    Sozialbetriebe Christuszentrum

  • Jahr

    2024

  • Ort

    Zürich


Die Sozialbetriebe Christuszentrum bieten angepasste Wohn-, Arbeits- und Ausbildungsmöglichkeiten für unterstützungsbedürftige Menschen, um sie bei der Wiedereingliederung in die Gesellschaft zu unterstützen.


Das Projekt schafft mit einem schmalen winkelförmigen Gebäudekörper entlang der Strasse einen geschützten Gartenhof, welcher den Mittelpunkt der Anlage bildet.

Über einen Laubengang kommunizieren die Wohnungen mit diesem und schaffen ein Wohnumfeld, welches das Gemeinschaftliche betont.

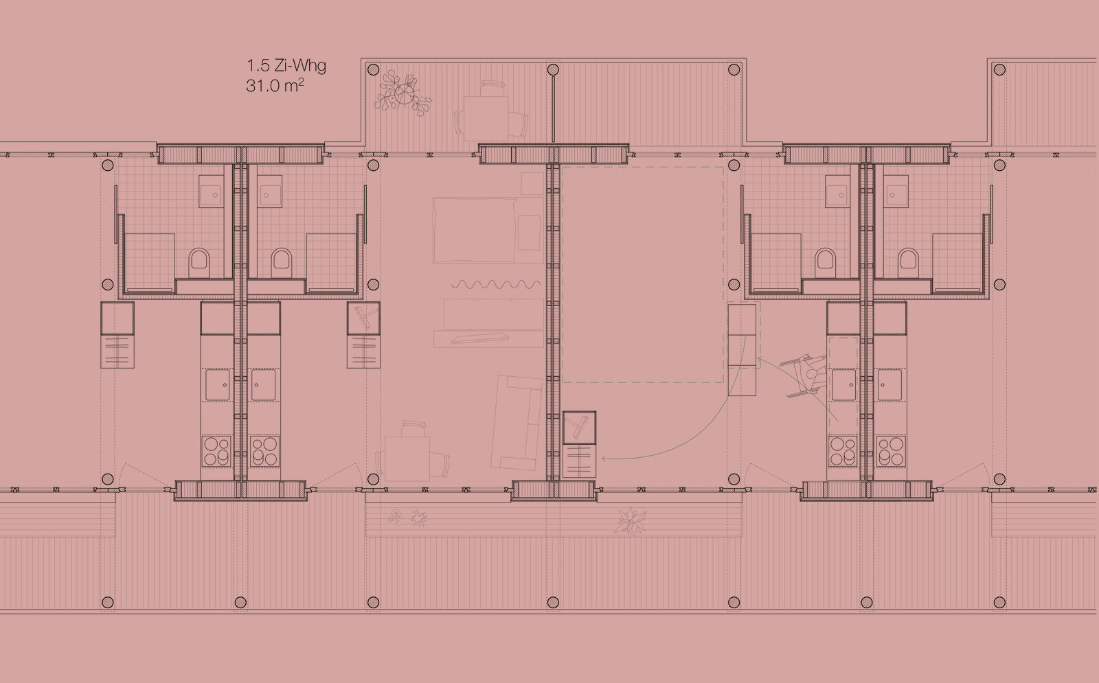
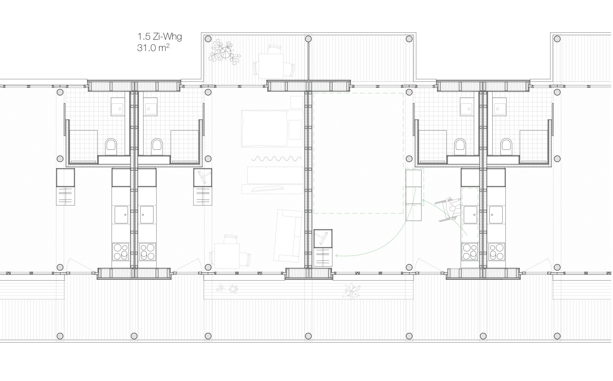
Zweiseitig orientierte Studiowohnungen

Durch den schlanken Baukörper können die Studiowohnungen auf einer nahezu quadratischen Grundfläche organisiert werden. Ein grosser frei möblierbarer Raum wird beidseitig belichtet und spannt sich zwischen der Laube und dem privaten Balkon auf.