hallo

Limmatstrasse

Ersatzneubau für die Baugewerbliche Berufsschule Zürich


  • Auftragsart

    Offener Wettbewerb

  • Jahr

    2018

  • Auftraggeber

    Baudirektion Kanton Zürich


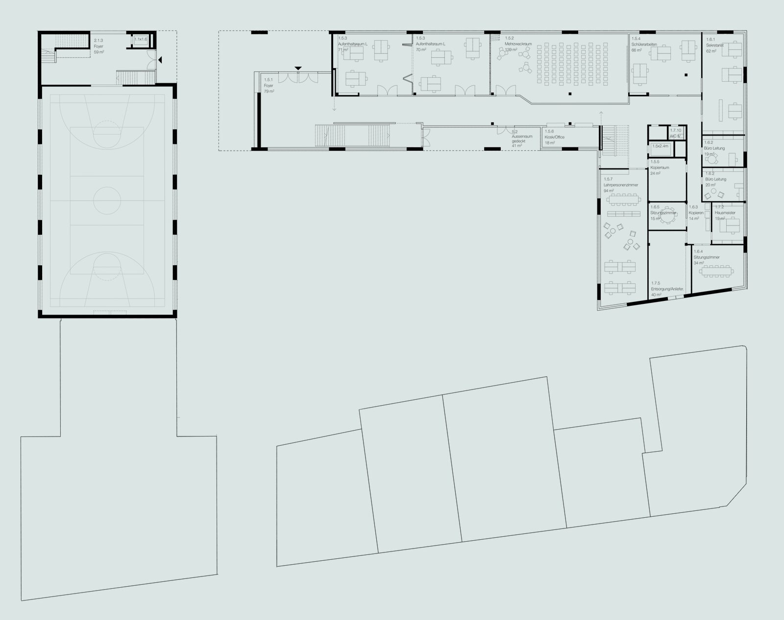
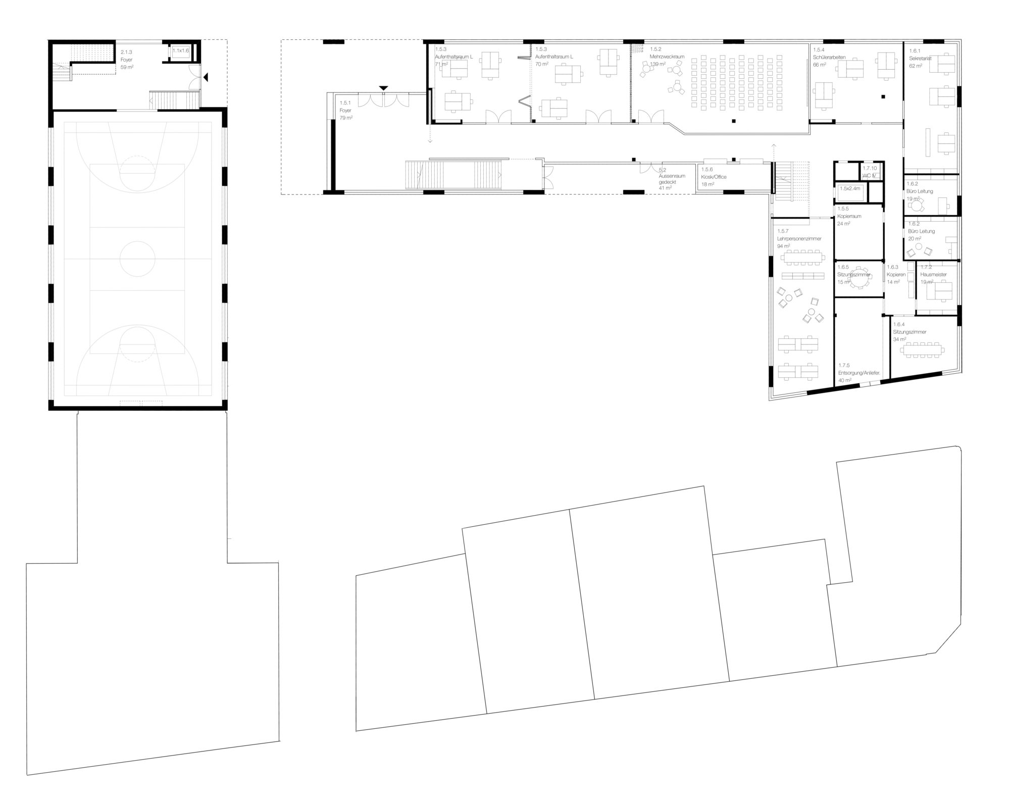
Zwei Häuser

Das Programm der neuen Berufsschule wird auf zwei Häuser verteilt, ein Schul- sowie ein Sportgebäude. Diese verstehen sich - im Gegensatz zu den freistehenden Schulbauten nördlich der Limmatstrasse - als Teil der Blockrandstruktur und bilden zusammen mit den bestehenden Wohnbauten einen grosszügigen öffentlichen Hof. Das Turnhallengebäude steht quer zur Limmatstrasse und bildet zur Klingenanlage einen prägnanten Kopf aus, welcher gleichzeitig den Duchgang in den Hof markiert.

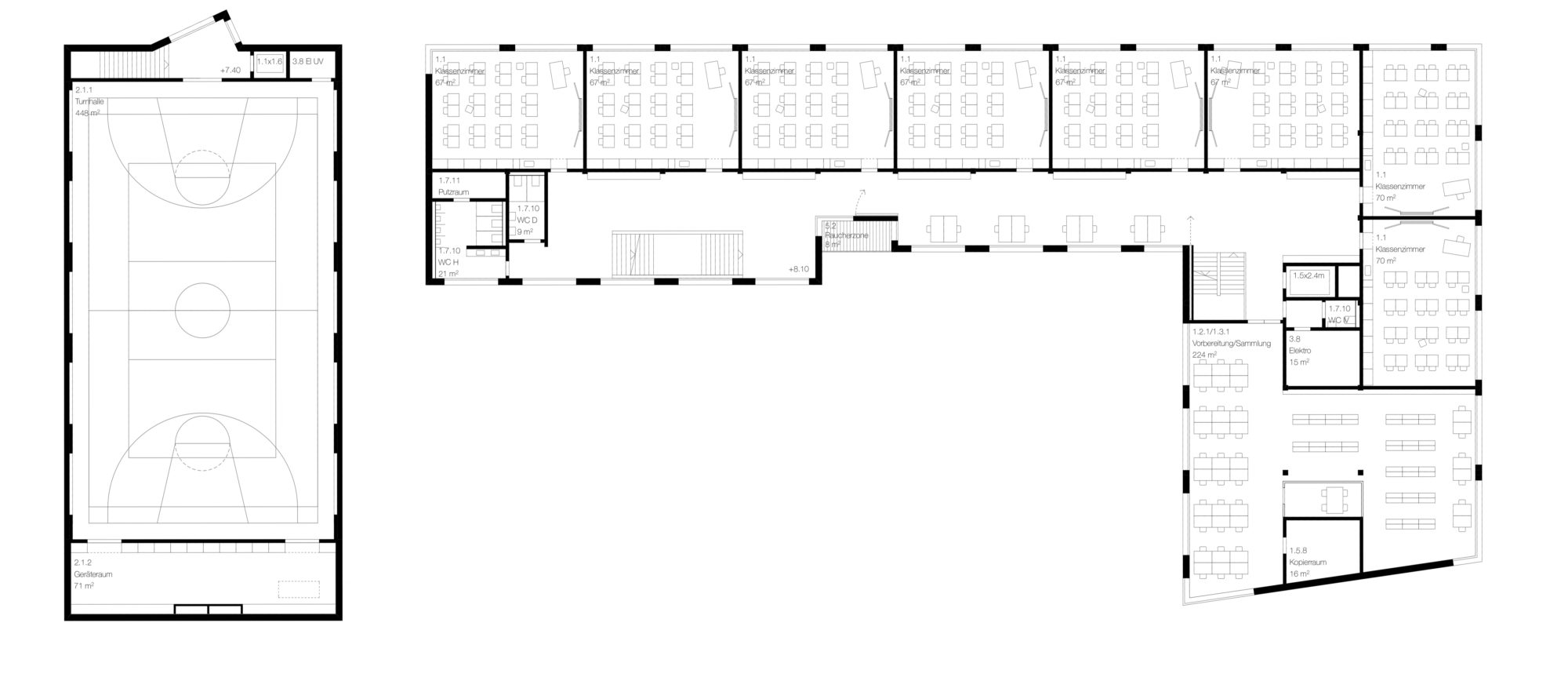
Schmale Schule am breiten Hof

Durch seine einbündige Organisation entlang der Limmatstrasse bleibt der Baukörper der Schule schlank und verschafft dem Hofraum eine grosszügige Proportion. Alle Schulräume orientieren sich konsequent zur Strassenseite hin, während Erschliessung und Aufenthaltsbereiche am Hof gelegen sind. Der kurze Querflügel zur Hafnerstrasse nimmt die Lehrerbereiche und Verwaltung auf. Das Erdgeschoss wird als grosses offenes Forum gestaltet, welches sowohl zur Strasse wie zum Hof hin das Schulleben kommuniziert.

Das Turnhallengebäude

Durch das Stapeln der beiden Hallen übereinander wird der Fussabdruck des Turnhallengebäudes minimiert, gleichzeitig erhält es eine starke, eigenständige Präsenz sowohl zur Strasse als auch zum Hof hin. Der Zugang sowie die vertikale Erschliessung orientieren sich zur Limmatstrasse hin.