hallo

Du Lac

Neubau Pflegezentrum St. Moritz


  • Auftragsart

    Wettbewerb selektiv

  • Jahr

    2018

  • Auftraggeber

    Gemeinden St. Moritz/ Sils/ Silvaplana


Thronender Pavillon

Ein kompakter allseitig orientierter Bau besetzt die höchste Erhebung auf dem Perimeter und orientiert sich gleichwertig zu allen Seiten hin.

Durch seine prägnante und selbstbewusste Setzung ordnet sich das Haus in die Reihe der monumentalen Hotelbauten aus der vergangenen Jahrhundertwende ein, welche das Dorfbild bis heute prägen.

Im Gegensatz zu diesen prägen Leichtigkeit und Offenheit den Charakter des Gebäudes. Die konkav geformten Aussenwände und die gitterartig aufgelöste äussere Struktur aus Beton unterstützen diesen Eindruck und suchen ein Gleichgewicht aus starker Präsenz und pavillonartiger Erscheinung. Die mit Holz verkleidete Aussenhaut strahlt hingegen die Wärme und Geborgenheit aus, welche auch die Wohnräume des Hauses charakterisieren.

Durch seine prägnante und selbstbewusste Setzung ordnet sich das Haus in die Reihe der monumentalen Hotelbauten aus der vergangenen Jahrhundertwende ein, welche das Dorfbild bis heute prägen.

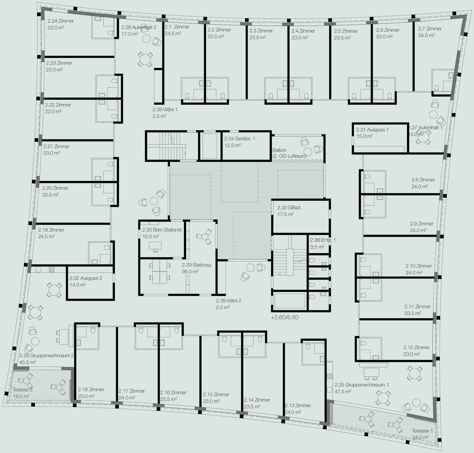
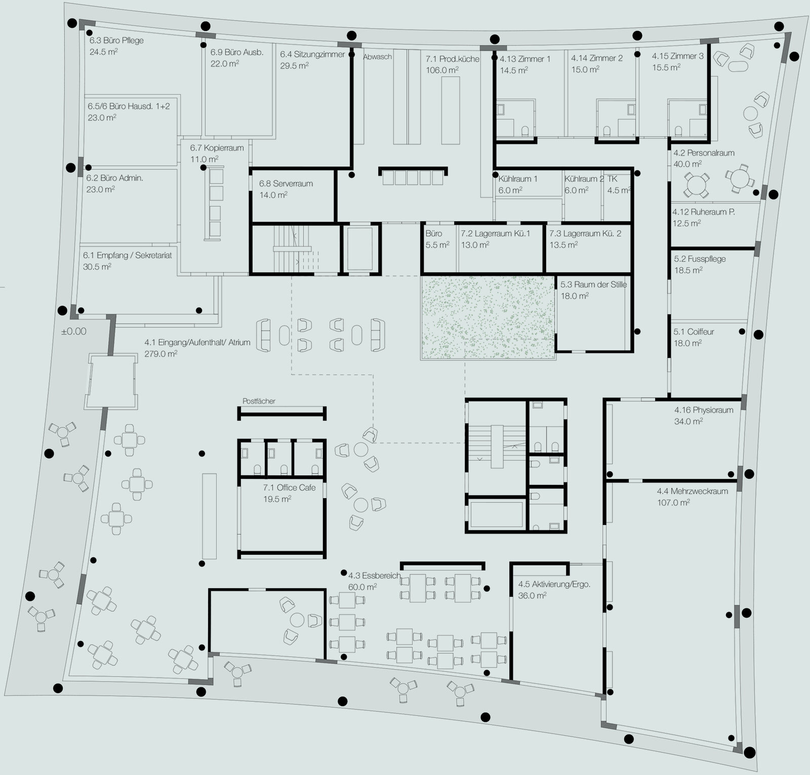
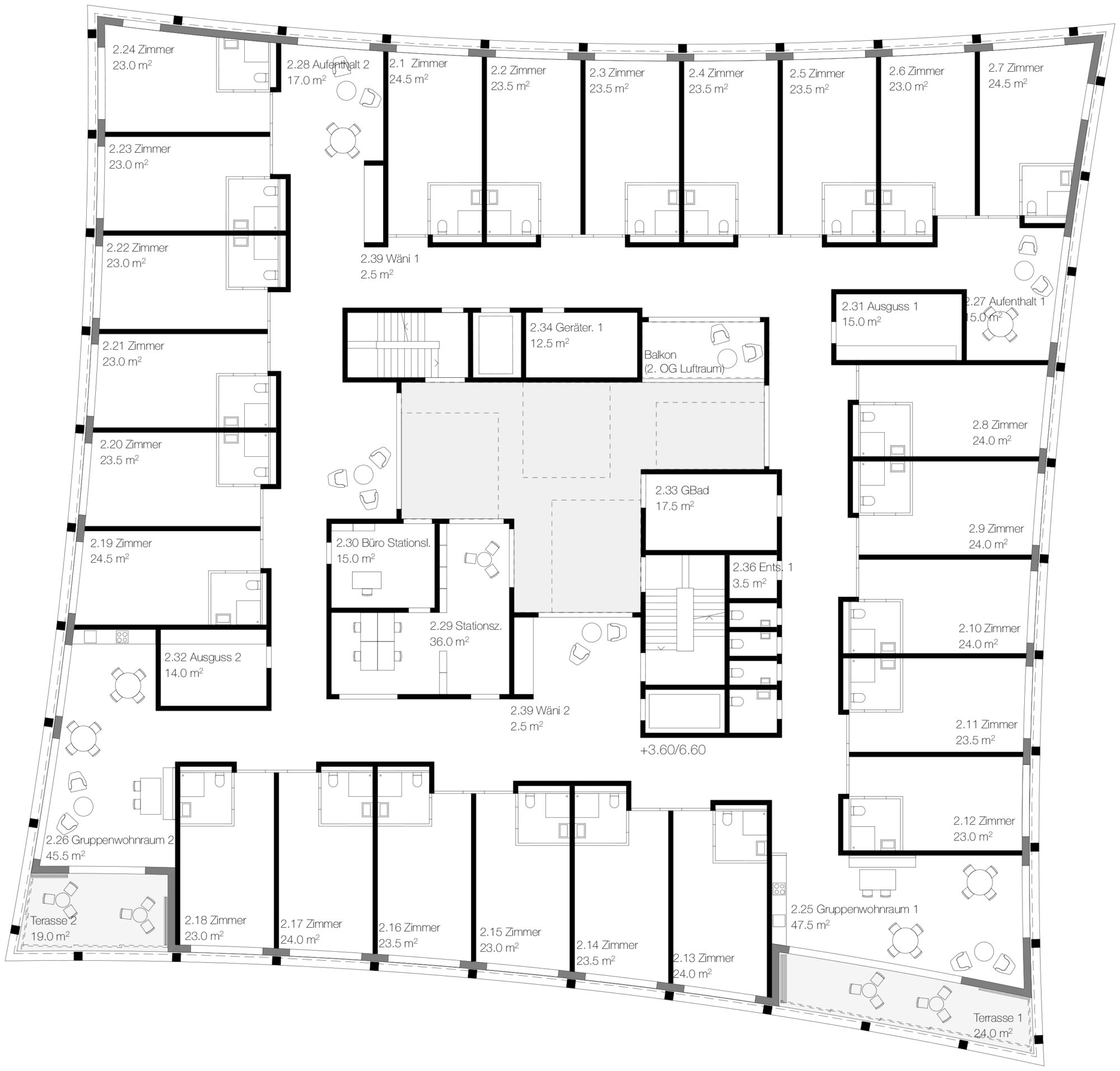
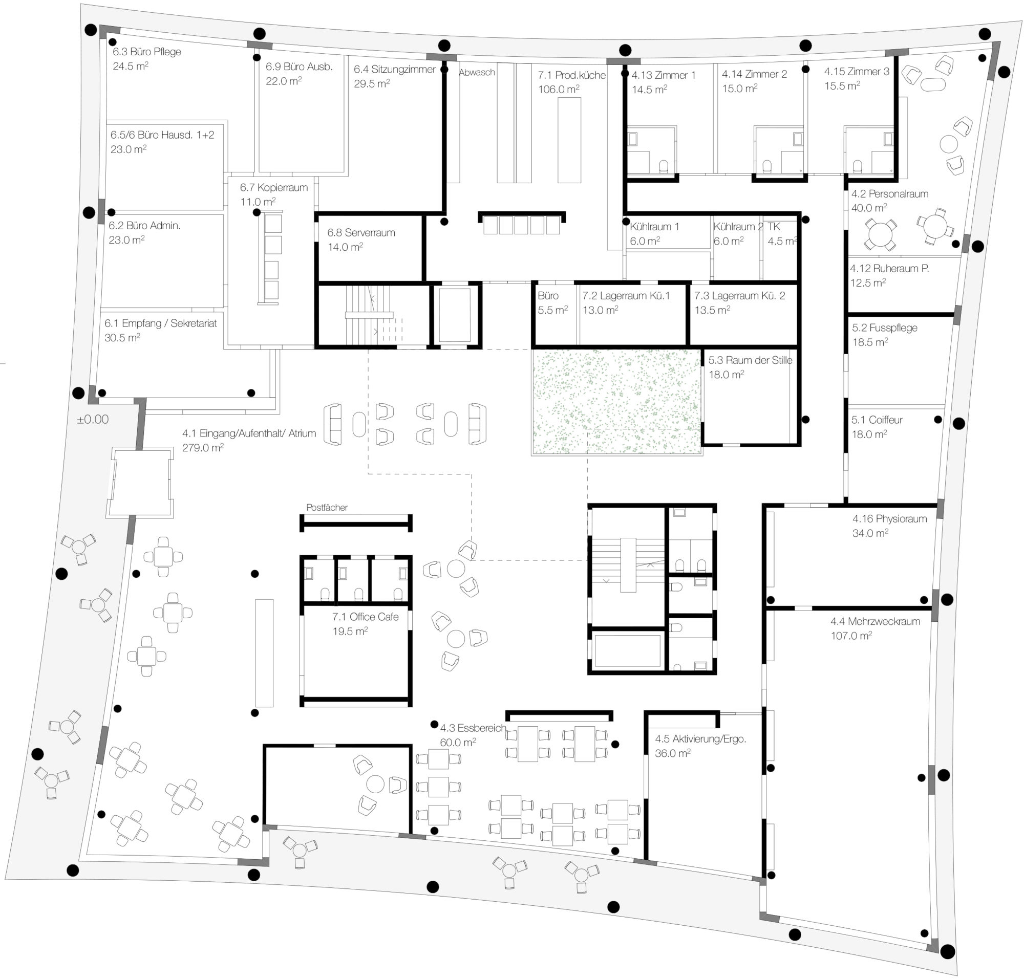
Ein attraktives, lichtdurchflutetes Atrium bildet das identitätsstiftende Zentrum des Gebäudes. Aus diesem heraus werden alle Nutzungen erschlossen, gleichzeitig bildet es einen attraktiven Aufenthaltsraum, welcher Beziehungen über alle Geschosse herstellt. In Analogie zu einem Dorfplatz bietet es den Bewohnern die Möglichkeit, am öffentlichen Leben im Haus auf verschiedene Weise teilzuhaben, im direkten Kontakt mit anderen auf der Erdgeschossebene, oder aber distanziert beobachtend von den Balkonen der oberen Geschosse aus.