hallo

Pilgerbrunnen

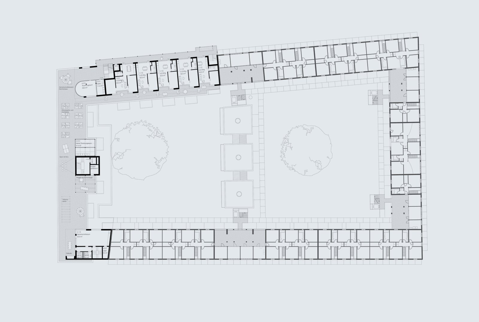
Neubau Kinderheim und Wohnungen/ Erweiterung Brahmshof


  • Wettbewerb selektiv

    3. Preis

  • Jahr

    2019

  • Auftraggeber

    Evangelischer Frauenbund Zürich


Das Projekt für den Neubau Pilgerbrunnen bietet die Chance, die bis heute Fragment gebliebene Anlage des Brahmshofs zu Ende zu denken. Dabei galt es die Frage zu beantworten, wie nahtlos dies angesichts der starken zeitlichen Konnotation der Architektur und der spezifischen Bedingungen des Programms überhaupt möglich und wünschenswert ist.

Wir verstehen unseren Entwurf gleichwohl als eigentlichen «Schlussstein» der Anlage. Er bekennt sich dabei klar zum Hoftyp, welcher den Brahmshof als räumliche und soziale Idee prägt. Gleichzeitig sucht die Erweiterung aber eine eigene Gestalt und Sprache, welche sich einerseits aus den spezifischen Nutzungsbedingungen ergibt und gleichzeitig die Erinnerung an den Bruch in der ursprünglichen Figur aufrechterhält.

Bewegter Horizont

Die beiden Programmteile von Wohnen und Kinderheim führen zu einer differenzierten Höhenentwicklung der Figur, welche den durchgehenden Horizont des Bestandes aufbricht: Im Nordflügel zur Badenerstrasse hin wächst der Wohnbauteil über diesen hinaus und bildet - inspiriert durch die in die Höhe wachsende Stadt der unmittelbaren Umgebung - einen neuen Massenschwerpunkt. Dies erlaubt, den vom Kinderheim gebildeten Westflügel niedrig auszubilden und dem Hof so eine gewisse Offenheit nach Westen zu erhalten, die ihn in der heutigen Form prägt.

Nicht zuletzt die charakteristische, etwas sperrige Architektursprache des Brahmshofs trägt zur ikonenhaften Ausstrahlung der Anlage bei. Der Neubau sucht einen verwandten, aber zeitgenössischen Ausdruck. Somit entsteht über die unterschiedliche volumetrische Entwicklung von alt und neu hinaus ein starker Zusammenhalt der Gesamtanlage.



Die Wohngruppen

Die Wohngruppen des Kinderheims vereinen gegensätzliche Qualitäten: klare Strukturen versus Offenheit, einfache Orientierung versus Verschiedenartigkeit der Raumcharaktere. Die Anordnung der Räume entlang einer breiten Erschliessungsdiele stellt ein einfaches und klassisches Prinzip dar: Ein grosszügiger, gut belichteter Raum bildet das Zentrum der Wohngruppe, der frei bespielt und möbliert werden kann.